梁宇泰
設計總監(jiān) 案例數: 19 套 從業(yè):16年
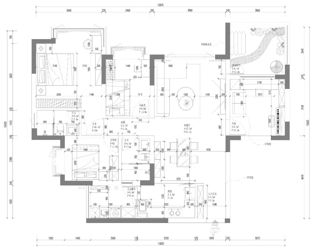
| 樓盤名稱:俊峰麗舍 | 案例戶型:3室2廳 | 案例面積:114平米 |
| 案例風格:現代簡約 | 設計師:梁宇泰 | 服務店面: 樂蜂全案 |
初見屋主時我覺得他們這對小夫妻十分的開朗外向,在對設計風格的進一步了解中確立了北歐風的清新格調是屋主所想要的,以此為基點我們在設計中對整體的格局進行優(yōu)化,加上后期軟裝配色的設計,整體裝修得以落地,看見小夫妻的笑容,這讓我們覺得一切都值得!

玄關實景圖

玄關實景圖

客廳實景圖

客廳實景圖

客廳實景圖

客廳實景圖

客廳實景圖

餐廳實景圖

餐廳實景圖

餐廳實景圖

餐廳實景圖

廚房實景圖

主臥實景圖

主臥實景圖

次臥實景圖

兒童房實景圖

衛(wèi)生間實景圖

衛(wèi)生間實景圖

其它實景圖

其它實景圖


數據預算由樂蜂裝飾集團歷史交付10萬+業(yè)主裝修數據
各個小區(qū)的簽單合同數據經過大數據實時分析計算
設計總監(jiān) 案例數: 19 套 從業(yè):16年
免費電話申請: 0755-29912991